手机版
桌面版
二维码
开年换新·稳价保供
施耐德电气新客礼
亚德客电磁阀37.99元
西门子PLC
博世电动工具
西门子PLC
大采汇服务号
公告:
首页广告位出租
点击查看详情>
首页
最新采购单
优质工厂
优质产品
公众号
小程序
认证中心
采购行业分类
塑胶件
冲压件
钣金加工
包装印刷
焊接件
机加工
表面处理
锻造铸造
服装纺织
机械设备
电子电器
玻璃制品
模具加工
木材家具
首页
>
最新订单
>
锻造铸造
钢铸件精铸加工
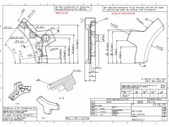
点击图片查看原图
需求数量:
4500件
报价是否含税:
含税
报价是否含运费:
含运费
付款方式:
有预付
所在地:
江苏无锡市
发布时间:
2016-12-06
有效期至:
2017-01-05
[已过期]
浏览次数:
10
公司基本资料信息
您还没有登录,请登录后查看详情
注意
:查看联系方式,需开通
VIP会员
详细说明
3款钢铸件,材料分别为铸钢1.5715,G42CrMo4和XCrNi13 ,数量为每种1500个,铸造等级CT5-CT6,粗糙度Ra6.3-3.2, 具体看图纸
附件图纸:
1HSB501474-2_cam_casting.pdf
1HSB501474-4_stop_casting.pdf
1HSB501474-5_support_casting.pdf
1HSB502167-25_revE.pdf
1HSB502184-61_revH.pdf
报价请加我QQ
更多
>
同类最新订单
水桶铸造件
不锈钢压铸件
不锈钢精铸件
招募铝压铸供应商
不锈钢铸造件
精铸件
铸造件
压铸件