寻实力且质量稳定机加工厂商合作,海外订单,无质量观念者,别参与报价!
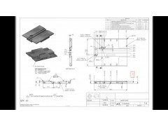
声明:1) 本产品是海外客户产品,产品的美观与精度需要得到可靠的保证,不然空运的费用将由自己负责,且全部退回! 2)由于产品是海外订单,故需要找一些实力好,质量稳定,交货期准时的厂商合作,本人在新加坡,这些都是这边的单子! 3)希望实力厂家,不要乱报价格,因为我们也懂国内的行情,所以希望厂家能以 薄利多销 的经营理念给予报价! 4)看清图纸认真报价,本产品的这一系列都是实单! 5)欢迎实力厂家,分开报价至QQ, 个人希望找到的是专业的有质量保证的长期合作的厂家!谢谢

公告:
