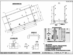
2 — — 连接螺栓 — — M14*50 2096个
3 — — 横杆 — — 钢管42.3*2.5*2000 520根
4 — — 扶手 — — 钢管42.3*2.5*2000 520根
5 — — 栏杆柱 — — 钢管48*2.75*630 524根
6 — — 栏杆柱 — — 钢管48*2.75*510 524根
7 — — 栏杆柱 — — 球76*3 1048个
8 — — 栏杆柱连接板 — — 6*130*140 524个
9 — — 步梯踏板 — — 5*260*800(5mm厚花纹钢板) 2080块
10 — — 步梯撑板 — — 8*160*1980 520块
11 — — 立柱2 — — 16a*300 262根 12 — — 立柱1 — — 16a*180 262根
附件:

公告:

