手机版
桌面版
二维码
开年换新·稳价保供
施耐德电气新客礼
亚德客电磁阀37.99元
西门子PLC
博世电动工具
西门子PLC
大采汇服务号
公告:
首页广告位出租
点击查看详情>
首页
最新采购单
优质工厂
优质产品
公众号
小程序
认证中心
采购行业分类
塑胶件
冲压件
钣金加工
包装印刷
焊接件
机加工
表面处理
锻造铸造
服装纺织
机械设备
电子电器
玻璃制品
模具加工
木材家具
首页
>
最新订单
>
机加工
小钉子小针定制
点击图片查看原图
需求数量:
1000000个
报价是否含税:
含税
报价是否含运费:
含运费
付款方式:
有预付
所在地:
上海
有效期至:
2021-05-14
[已过期]
最后更新:
2021-04-29 12:00
浏览次数:
58
公司基本资料信息
您还没有登录,请登录后查看详情
注意
:发布人未在本站注册,建议优先选择
VIP会员
详细说明
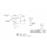
1. 316SS或430F超小精密小钉子小针定制,数量百万以上。
2. 要求是工厂接单,中间商勿扰,届时需要考核工厂,工厂需要具有ISO等等相关证书。
3. 材质为:316SS或430F,不需要电镀。
4. 数量: 后期可能加大。前期需要打样。 5. 请注意制作出的钉子要和照片里面一样光滑,锋利。
图纸:
1.PDF
更多
>
同类最新订单
吊具-可调节丝杆加工
细钢丝穿珠针加工
金属直角两通加工
T型三通加工
两通加工
四通加工
铁和不锈钢加工
机加工件