手机版
桌面版
二维码
开年换新·稳价保供
施耐德电气新客礼
亚德客电磁阀37.99元
西门子PLC
博世电动工具
西门子PLC
大采汇服务号
公告:
首页广告位出租
点击查看详情>
首页
最新采购单
优质工厂
优质产品
公众号
小程序
认证中心
采购行业分类
塑胶件
冲压件
钣金加工
包装印刷
焊接件
机加工
表面处理
锻造铸造
服装纺织
机械设备
电子电器
玻璃制品
模具加工
木材家具
首页
>
最新订单
>
冲压件
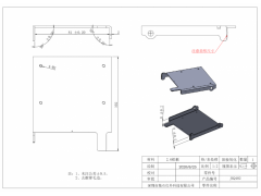
激光调节器钣金件
点击图片查看原图
需求数量:
500件
报价是否含税:
含税
报价是否含运费:
含运费
付款方式:
有预付
所在地:
广东深圳市
有效期至:
2020-09-02
[已过期]
最后更新:
2020-08-26 22:32
浏览次数:
87
公司基本资料信息
您还没有登录,请登录后查看详情
注意
:发布人未在本站注册,建议优先选择
VIP会员
详细说明
本公司现有激光调节器所用的5款钣金件需要加工每款做100件,请保证您的利润的情况下,给我们最优惠的价格、我们是网络询价,按照约定交货期的前提下,报价最低价格,报高的以后有机会在合作、我们不压价、不讨价还价,一次报价机会、付款及时,每个月25号前送货的当月对账,下个月18号收到您的增值税专用发票、对账单、送货单,25号准时结款。不能月结的勿扰、报价前请提供您公司的营业执照,一般人增值税证明。
图纸:
JGQ402.PDF
JGQ403.PDF
JGQ405.PDF
JGQ401.PDF
JGQ404.PDF
更多
>
同类最新订单
三环点火锁弹片加工
方型提把加工
不锈钢加工件
冲压件
冲压配件加工
冲压件
垫片加工
五金弹片加工