手机版
桌面版
二维码
开年换新·稳价保供
施耐德电气新客礼
亚德客电磁阀37.99元
西门子PLC
博世电动工具
西门子PLC
大采汇服务号
公告:
首页广告位出租
点击查看详情>
首页
最新采购单
优质工厂
优质产品
公众号
小程序
认证中心
采购行业分类
塑胶件
冲压件
钣金加工
包装印刷
焊接件
机加工
表面处理
锻造铸造
服装纺织
机械设备
电子电器
玻璃制品
模具加工
木材家具
首页
>
最新订单
>
机加工
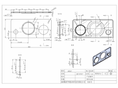
铝合金外壳cnc加工
点击图片查看原图
需求数量:
10件
报价是否含税:
含税
报价是否含运费:
含运费
付款方式:
有预付
所在地:
广东深圳市
发布时间:
2019-09-10
有效期至:
2019-09-17
[已过期]
浏览次数:
221
公司基本资料信息
您还没有登录,请登录后查看详情
注意
:查看联系方式,需开通
VIP会员
详细说明
非常感谢您对我公司产品支持,如果您有意向合作,请按照图纸报价,有不明白的地方联系我们,报价单按照我的型号、图片、数量、价格、做成表格报价、请保证您的利润的情况下,给我们最低的价格、我们是网络询价,在保证图纸工业要求、交货期的前提下,只和最低的的三家谈,报高的以后有机会在合作、我们不压价、付款及时,每个月25号前送货的当月对账,下个月收到您的增值税专用发票,25号准时结款。谢谢您辛苦了,这个件体积大,请有850以上机床的CNC加工中心的公司和我联系,,精度按图纸要求,需要3D尺寸,请提供您公司的营业执照,一般人增值税证明
图纸:
502(3视窗后板)(生产10件).PDF
502(3视窗前板(生产5件).PDF
502(150热成像前板)(生产5件).PDF
502护罩底板(生产10件).PDF
520301.PDF
更多
>
同类最新订单
吊具-可调节丝杆加工
细钢丝穿珠针加工
金属直角两通加工
T型三通加工
两通加工
四通加工
铁和不锈钢加工
机加工件