手机版
桌面版
二维码
开年换新·稳价保供
施耐德电气新客礼
亚德客电磁阀37.99元
西门子PLC
博世电动工具
西门子PLC
大采汇服务号
公告:
首页广告位出租
点击查看详情>
首页
最新采购单
优质工厂
优质产品
公众号
小程序
认证中心
采购行业分类
塑胶件
冲压件
钣金加工
包装印刷
焊接件
机加工
表面处理
锻造铸造
服装纺织
机械设备
电子电器
玻璃制品
模具加工
木材家具
首页
>
最新订单
>
冲压件
折弯冲压件加工
点击图片查看原图
需求数量:
300件
报价是否含税:
含税
报价是否含运费:
含运费
付款方式:
有预付
所在地:
广东佛山市
发布时间:
2015-12-23
有效期至:
2015-12-30
[已过期]
浏览次数:
23
公司基本资料信息
您还没有登录,请登录后查看详情
注意
:查看联系方式,需开通
VIP会员
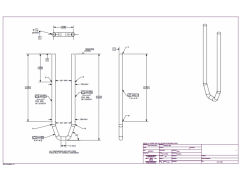
详细说明
产品名称
采购量
产品描述
折弯冲压件
300件
材料不锈钢302,由两个部件组成,用超声波焊接在一起 (图纸上尺寸是英寸单位)
Marked up wire form drawing.pdf
PJ-I-11960.A1.PDF
PJ-I-11901.A3.PDF
折弯冲压件
300件
其中一个部件的图纸
PJ-I-11970.A1.PDF
需3D图,请联系QQ 903540125
更多
>
同类最新订单
三环点火锁弹片加工
方型提把加工
不锈钢加工件
冲压件
冲压配件加工
冲压件
垫片加工
五金弹片加工