手机版
桌面版
二维码
开年换新·稳价保供
施耐德电气新客礼
亚德客电磁阀37.99元
西门子PLC
博世电动工具
西门子PLC
大采汇服务号
公告:
首页广告位出租
点击查看详情>
首页
最新采购单
优质工厂
优质产品
公众号
小程序
认证中心
采购行业分类
塑胶件
冲压件
钣金加工
包装印刷
焊接件
机加工
表面处理
锻造铸造
服装纺织
机械设备
电子电器
玻璃制品
模具加工
木材家具
首页
>
最新订单
>
机加工
轴外协加工
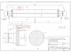
点击图片查看原图
需求数量:
50件
报价是否含税:
含税
报价是否含运费:
含运费
付款方式:
有预付
所在地:
上海
有效期至:
2019-03-25
[已过期]
最后更新:
2019-03-18 20:19
浏览次数:
98
公司基本资料信息
您还没有登录,请登录后查看详情
注意
:发布人未在本站注册,建议优先选择
VIP会员
详细说明
尊敬的供应商,
现在有25-50件合金钢轴要外协加工,材质42CrMo的,具体要求见图纸和说明,请仔细看说明,材质要有探伤要求,如果材质达不到就不要报价。
供应商最好在上海,昆山,苏州,嘉善,太仓,远了就不要报价了,检验都不方便。
要木箱包装,木箱下面要有方木支撑,方便叉车。
有问题请联系我,谢谢
附件:
图纸.pdf
外贸询价- 锻轧钢棒超声检测方法.pdf
外贸询价-特殊要求说明.docx
更多
>
同类最新订单
吊具-可调节丝杆加工
细钢丝穿珠针加工
金属直角两通加工
T型三通加工
两通加工
四通加工
铁和不锈钢加工
机加工件