手机版
桌面版
二维码
开年换新·稳价保供
施耐德电气新客礼
亚德客电磁阀37.99元
西门子PLC
博世电动工具
西门子PLC
大采汇服务号
公告:
五一开通会员有优惠
点击查看详情>
首页
最新采购单
优质工厂
优质产品
公众号
小程序
认证中心
采购行业分类
塑胶件
冲压件
钣金加工
包装印刷
焊接件
机加工
表面处理
锻造铸造
电子电器
机械设备
服装纺织
玻璃陶瓷
模具加工
木材家具
首页
>
最新订单
>
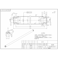
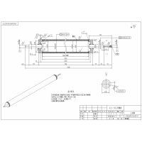
机加工
轴加工
点击图片查看原图
需求数量:
50件
报价是否含税:
含税
报价是否含运费:
含运费
付款方式:
有预付
所在地:
河北唐山市
发布时间:
2019-01-21
有效期至:
2019-01-24
[已过期]
浏览次数:
80
公司基本资料信息
您还没有登录,请登录后查看详情
注意
:查看联系方式,需开通
VIP会员
详细说明
轴加工,见图纸,请阅读图纸要求 裸露部分做防锈处理
图纸:
V1824M.01.03.02-1(被动轴).pdf
50件
V1824M.01.03.03-1(支撑轴).pdf
100件
V1824M.01.03.07.01(主动轴).pdf
50件
V1824M.04.17-2(辊轴A).pdf
40件
V1824M.04.18-2(辊轴B).pdf
40件
更多
>
同类最新订单
车铣复合加工
非标件
低压轴加工
动力电池货架加工
骨头扳手加工
拉手加工
车铣加工件
车加工