大采汇 - 机械制造外协加工平台 - 数智化采购招标、询价报价B2B服务商

大采汇服务号

外协加工配件

点击图片查看原图
 
需求数量: 100件
报价是否含税: 含税
报价是否含运费: 含运费
付款方式: 有预付
所在地: 山东青岛市
有效期至: 2018-12-13 [已过期]
最后更新: 2018-11-28 22:33
浏览次数: 156
 
公司基本资料信息

您还没有登录,请登录后查看详情


 注意:发布人未在本站注册,建议优先选择VIP会员
详细说明

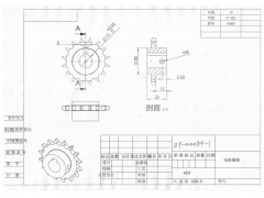
电机链轮 16齿  100件   图纸:221434580.jpg


理管机链轮 24齿  100件  图纸:221516640.jpg


齿轮 25齿  100件  图纸:221553240.jpg


主动链轮 30齿  100件  图纸:221617180.jpg




更多>同类最新订单
吊具-可调节丝杆加工 细钢丝穿珠针加工 金属直角两通加工 T型三通加工 两通加工 四通加工 铁和不锈钢加工 机加工件