手机版
桌面版
二维码
开年换新·稳价保供
施耐德电气新客礼
亚德客电磁阀37.99元
西门子PLC
博世电动工具
西门子PLC
大采汇服务号
公告:
首页广告位出租
点击查看详情>
首页
最新采购单
优质工厂
优质产品
公众号
小程序
认证中心
采购行业分类
塑胶件
冲压件
钣金加工
包装印刷
焊接件
机加工
表面处理
锻造铸造
服装纺织
机械设备
电子电器
玻璃制品
模具加工
木材家具
首页
>
最新订单
>
机加工
皮带轮加工
点击图片查看原图
需求数量:
300PCS
报价是否含税:
含税
报价是否含运费:
含运费
付款方式:
有预付
所在地:
上海
发布时间:
2017-11-07
有效期至:
2017-11-14
[已过期]
浏览次数:
26
公司基本资料信息
您还没有登录,请登录后查看详情
注意
:查看联系方式,需开通
VIP会员
详细说明
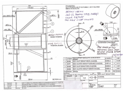
我们一个国外客人发过来一些皮带轮询盘, 一张组装图纸,四个零部件图纸。合计有5张图纸 材料:S235钢或者S355钢 数量:300套 表面处理:喷涂,TP133 PU80/1喷涂,色号:RAL 7035 不要开票,但是要去含运费货物送上海 报价及联系邮箱:info@isf-industry.com 关于32487的图纸A-C区域的中文翻译如下 A: 零件1现在先机加工好以后再进行焊接 B: 表面过去是直的表面,现在是球形的表面 C: 为32486-A这个环圈增加一个有缝支撑物
附件:
4.png
5.png
更多
>
同类最新订单
喷嘴车件
K20M五金台加工(焊接
机加非标件
小螺栓加工
零件加工(急)
非标螺母加工
平衡铁CNC加工
304不锈钢轴加工