手机版
桌面版
二维码
开年换新·稳价保供
施耐德电气新客礼
亚德客电磁阀37.99元
西门子PLC
博世电动工具
西门子PLC
大采汇服务号
公告:
首页广告位出租
点击查看详情>
首页
最新采购单
优质工厂
优质产品
公众号
小程序
认证中心
采购行业分类
塑胶件
冲压件
钣金加工
包装印刷
焊接件
机加工
表面处理
锻造铸造
电子电器
机械设备
服装纺织
玻璃陶瓷
模具加工
木材家具
首页
>
最新订单
>
机加工
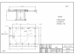
焊接支架加工(材料自理)
点击图片查看原图
需求数量:
12件
报价是否含税:
含税
报价是否含运费:
含运费
付款方式:
有预付
所在地:
江苏南京市
发布时间:
2015-08-03
有效期至:
2015-09-02
[已过期]
浏览次数:
24
公司基本资料信息
您还没有登录,请登录后查看详情
注意
:查看联系方式,需开通
VIP会员
详细说明
产品用连接支架,
我厂产品于电机连接用
需要保证电机孔同心度与垂直度。。
钢板焊接,20#钢也可以
图纸见附件
NSNJ45油浸式支架组合150730.pdf
更多
>
同类最新订单
农业传动轴加工
平头螺钉加工
锥齿轮加工
内外圆磨加工
合页加工
前轴壳加工
挤压加工
紫铜管加工